Amsterdam, Netherlands
BogermanDill
Post By:Kitticoon Poopong
 |
| Photo © Courtesy of Wil van Iersel |
House Pinck-Heerkens, a former press office, lies on the
Prinsengracht – one of Amsterdam’s most coveted streets. Architects BogermanDill renovated the former industrial space to form a family residence, while preserving a number of original features such as wooden floors, low ceilings and
I-beams.
 |
| Photo © Courtesy of Wil van Iersel |
 |
| Photo © Courtesy of Wil van Iersel |
 |
| Photo © Courtesy of Wil van Iersel |
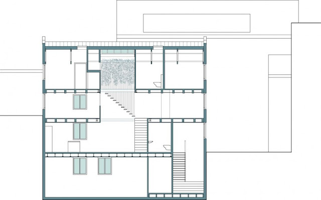
To connect the space’s four floors and unify the main living areas, BogemanDill created a large void in the centre of the house. The first and second stories are interconnected by a wooden staircase without a balustrade, and a floating staircase leads up to the third floor; both are in keeping with the
open-plan feel of the space.
 |
| Photo © Courtesy of Wil van Iersel |
 |
| Photo © Courtesy of Wil van Iersel |
Because the void cuts through the top floor of the house, its two rooms are joined by a floating bridge made from steel I-beams. Overall, the original features such as the visible brick work and steel caged windows contribute to an atmosphere somewhat reminiscent of a New York loft.
 |
| Photo © Courtesy of Wil van Iersel |
 |
| Photo © Courtesy of Wil van Iersel |
 |
| Photo © Courtesy of Wil van Iersel |
 |
| Photo © Courtesy of Wil van Iersel |
 |
| Photo © Courtesy of Wil van Iersel |
 |
| Photo © Courtesy of Wil van Iersel |
 |
| Photo © Courtesy of Wil van Iersel |
 |
| Photo © Courtesy of Wil van Iersel |
 |
| Photo © Courtesy of Wil van Iersel |
 |
| Photo © Courtesy of Wil van Iersel |
 |
| first floor plan--drawing Courtesy of BogermanDill |
 |
| first floor plan--drawing Courtesy of BogermanDill |
 |
| first floor plan--drawing Courtesy of BogermanDill |
 |
| first floor plan--drawing Courtesy of BogermanDill |
 |
| section--drawing Courtesy of BogermanDill |
 |
| aso diagram 01--drawing Courtesy of BogermanDill |
 |
| aso diagram 02--drawing Courtesy of BogermanDill |
 |
| diagram--drawing Courtesy of BogermanDill |
The people
Interior designer: BogermanDill
Location: Amsterdam, Netherlands
Photographs: Wil van Iersel
via:contemporist