Hokkaido, Japan
Jun Igarashi Architects
Post By:Kitticoon Poopong
 |
| Photo © Courtesy of Jun Igarashi Architects |
'
House of trough' by japanese studio
jun igarashi architects is a dwelling for a couple located east of hokkaido. the site, which is a less-than-desirable plot next to an iron factory, called for a design that limited the interior's visual interaction with the exterior to maintain a calm living atmosphere for the inhabitants.
 |
| Photo © Courtesy of Jun Igarashi Architects--south elevation in context |
 |
| Photo © Courtesy of Jun Igarashi Architects--semi-translucent curtains set apart the two 'buffer' rooms |
 |
| Photo © Courtesy of Jun Igarashi Architects--bedroom with stairs to the closet |
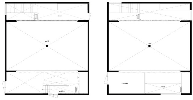
In order to ensure that the living space was sufficiently closed-off from outside siteconditions, various programs of the house act as '
buffer zones' and are distributed accordingly to push certain spaces more inward than outward. the square-shaped plan sandwiches the living/dining/kitchen area between a service/storage volume to the north and
a bedroom/storage volume to the south. this middle zone is largely devoid of windows but remains open vertically to promote a spacious quality.
Much like mezzanines, the two volumes to the sides remain open, enabling the inhabitants
to overlook the rest of the house while still illuminating the lower level. the south side accommodates a
guest room in the partial basement, a bedroom on the ground floor and a generous storage space on the elevated level. the washroom and utility closet are housed on the north side with an additional lookout stoop accessible by a ladder. white translucent curtains act as temporary walls when needed.
 |
| Photo © Courtesy of Jun Igarashi Architects--view from the sleeping loft space |
 |
| Photo © Courtesy of Jun Igarashi Architects |
 |
| Photo © Courtesy of Jun Igarashi Architects--dining space |
 |
| Photo © Courtesy of Jun Igarashi Architects |
 |
| Photo © Courtesy of Jun Igarashi Architects--(left) view from the north loft (right) view of the living space from the entrance hall |
 |
| Photo © Courtesy of Jun Igarashi Architects--(left) entrance, looking up to the bedroom loft (right) guestroom |
 |
| level 0 & 1 Floor plan--drawing Courtesy of Jun Igarashi Architects |
 |
| level 0-1 & 1 Floor plan--drawing Courtesy of Jun Igarashi Architects |
 |
| level 1.5 & model Floor plan--drawing Courtesy of Jun Igarashi Architects |
 |
| sectional model--drawing Courtesy of Jun Igarashi Architects |
 |
| sectional model--drawing Courtesy of Jun Igarashi Architects |
 |
| west elevation--drawing Courtesy of Jun Igarashi Architects |
 |
| east elevation--drawing Courtesy of Jun Igarashi Architects |
The people
Architects: Jun Igarashi Architects
Location: Hokkaido, Japan
Client: couple
Structural design: daisuke hasegawa & partners
Construction: yamada industry co., ltd
Structure: wood
Storeys: 2
Site area: 208.06 m2
Total floor area: 98.44 m2
Photographs: Courtesy of Jun Igarashi Architects