Paul de Ruiter
Post By:Kitticoon Poopong
![]() |
| Photo © Courtesy of Pieter Kers |
![]() |
| Photo © Courtesy of Pieter Kers |
![]() |
| Photo © Courtesy of Pieter Kers |
BUILDING PLOT
The woods around the villa are dark, which means it is important to ensure that as much light can enter the house as possible. However, the more glass is used in a building, the more difficult it is to maintain the dividing line between inside and outside, private and public. Therefore the building plot is divided into three long strips at right angles to the road. The bottom and southernmost strip is reserved for the garden, the middle strip contains the villa itself and the most northern strip offers access to the house: this is where the drive, parking space and the entrance are located. This layout of the site means that those parts of the house that the residents prefer to keep private are out of sight.
![]() |
| Photo © Courtesy of Pieter Kers |
![]() |
| Photo © Courtesy of Pieter Kers |
![]() |
| Photo © Courtesy of Pieter Kers |
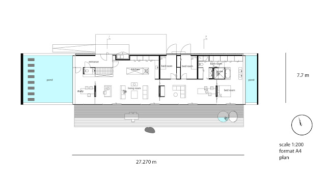
LIVING ZONES
The layout of the site is repeated in the floor plan of the house. This is also divided into three strips over the 30-metre length of the villa. To ensure both openness and liveability, the floor plan is split. The eastern section, at the street side, contains the more ‘public’ functions: the entrance, study, kitchen and living; while the western section, furthest removed from the street, is reserved for the more intimate activities: a corridor that acts as TV lounge, the bedrooms and the bathroom. This means that the character of the functions gradually becomes more intimate. Each function has its own zone within the house, which can be cut off by means of translucent sliding walls.
![]() |
| Photo © Courtesy of Pieter Kers |
![]() |
| Photo © Courtesy of Pieter Kers |
LIVING IN THE GARDEN
To create openness and lightness and tot give the residents the feeling living outside in the green, the house is entirely oriented to the secluded garden at the south. Every room in the villa looks directly out on to this garden, because three of the four façades are made of glass.
![]() |
| Photo © Courtesy of Pieter Kers |
![]() |
| Photo © Courtesy of Pieter Kers |
![]() |
| Photo © Courtesy of Pieter Kers |
![]() |
| ground floor plan--drawing Courtesy of Paul de Ruiter |
![]() |
| elevation 01--drawing Courtesy of Paul de Ruiter |
![]() |
| elevation 02--drawing Courtesy of Paul de Ruiter |
![]() |
| elevation 03--drawing Courtesy of Paul de Ruiter |
![]() |
| section 01--drawing Courtesy of Paul de Ruiter |
![]() |
| section 02--drawing Courtesy of Paul de Ruiter |
![]() |
| section 03--drawing Courtesy of Paul de Ruiter |
The people
Architect: Paul de RuiterLocation: Veenendaal, Netherlands
Project Architect: Paul de Ruiter
Project Team: Sander van Veen, Helga Traksel
Advisor Construction: Van Kessel & Janssen bv
Contractor: Bouwbedrijf Valleibouw
Site Area: 1,232 sqm
Constructed Area: 277 sqm
Project Year: 2003-2004
Construction year: 2004-2005
Photographs: Pieter Kers



















