San Francisco, California, United States
Craig Steely Architecture
Post By:Kitticoon Poopong
 |
| Photo © Courtesy of Bruce Damonte |
The extensive
renovation of this house began by tearing away the layers of substandard remodeling that had accrued over the past 100 years. The home was designed by Craig Steely Architecture and located in San Francisco. Follow the break for more photographs and drawings of the Xiao-Yen’s House.
 |
| Photo © Courtesy of Bruce Damonte |
 |
| Photo © Courtesy of Bruce Damonte |
 |
| Photo © Courtesy of Bruce Damonte |
The design called for a contemporary program that includes a more
open plan for work and living, a sod roof, and a glass penthouse supported by a steel
exoskeleton. The steel exoskeleton is part of a
seismic upgrade that doesn’t tear the existing building apart. It also supports decks on 2 floors and a pack a bi-facial
solar panels.
 |
| Photo © Courtesy of Bruce Damonte |
 |
| Photo © Courtesy of Bruce Damonte |
 |
| Photo © Courtesy of Bruce Damonte |
 |
| Photo © Courtesy of Bruce Damonte |
 |
| Photo © Courtesy of Bruce Damonte |
 |
| Photo © Courtesy of Bruce Damonte |
 |
| Photo © Courtesy of Bruce Damonte |
 |
| Photo © Courtesy of Bruce Damonte |
 |
| Photo © Courtesy of Bruce Damonte--before & after |
 |
| first & second floor plans--drawing Courtesy of Craig Steely Architecture |
 |
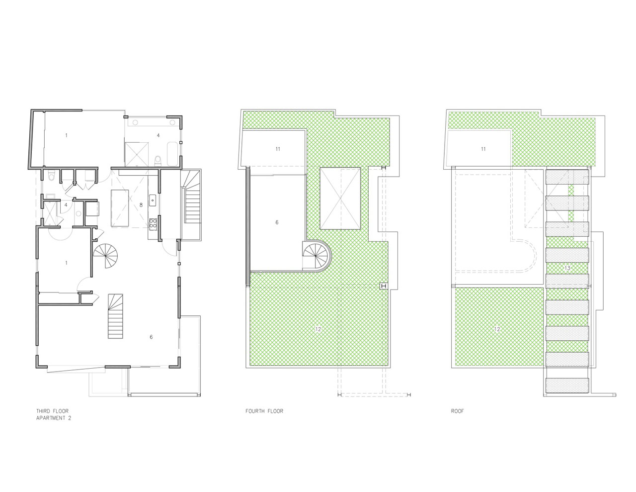
| third, fourth & roof floor plans--drawing Courtesy of Craig Steely Architecture |
The people
Architect: Craig Steely Architecture
Location: San Francisco, California, United States
Structural Engineer: Val Rabichev
Contractor: Structura
Project Area: 1,500 sqf (Lower Apartment Area), 2,000 sqf (Upper Apartment Area)
Project Year: 2010
Photographs: Bruce Damonte