Wimberley, Texas, United States
Cunningham Architects
Post By:Kitticoon Poopong
 |
| Photo © Courtesy of Tre Dunham |
Designed by
Cunningham Architects, the Wimberley House quietly sits among dense brush and native Oak and Juniper trees nestled on the edge of a bluff in the
Texas hill country. Accessed via a winding half-mile driveway and a short
walking trail from the garage, this 5,000 sqf residence provides a peaceful respite for its inhabitants.
 |
| Photo © Courtesy of Tre Dunham |
 |
| Photo © Courtesy of Tre Dunham |
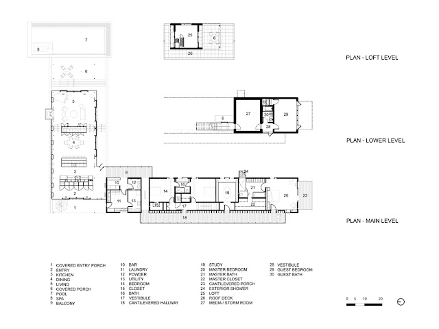
An “L” plan effectively separates the private bedroom wing from the more public entertaining wing comprising the kitchen/living/dining rooms. As such, the house essentially is two discrete boxes, one clad in stained cement
fiber board, the other a glass pavilion. Access across the two is via a cantilevered glass hallway, affording the sensation of walking along the edge of the forest.
 |
| Photo © Courtesy of Tre Dunham |
 |
| Photo © Courtesy of Tre Dunham |
 |
| Photo © Courtesy of Tre Dunham |
 |
| Photo © Courtesy of Tre Dunham |
Accessible from a galvanized steel spiral stair, the roof deck is capable of hosting large family gatherings, while the steel and glass railing affords expansive views of the surrounding terrain up to 10 miles. It also acts as a rainwater harvesting surface for the on-site 40,000 gallon cistern, thus providing for all of the homes watering needs. As an exercise in sustainable building, the house utilizes energy efficient construction techniques as well as local resources and building materials.
 |
| Photo © Courtesy of Cunningham Architects |
 |
| Photo © Courtesy of Cunningham Architects |
 |
| Photo © Courtesy of Cunningham Architects |
 |
| Photo © Courtesy of Tre Dunham |
 |
| Photo © Courtesy of Gisela Borghi |
 |
| Photo © Courtesy of Cunningham Architects |
 |
| Photo © Courtesy of Cunningham Architects |
 |
| location plan--drawing Courtesy of Cunningham Architects |
 |
| site plan--drawing Courtesy of Cunningham Architects |
 |
| floor plan--drawing Courtesy of Cunningham Architects |
 |
| elevation 01--drawing Courtesy of Cunningham Architects |
 |
| elevation 02--drawing Courtesy of Cunningham Architects |
 |
| elevation 03--drawing Courtesy of Cunningham Architects |
The people
Architect: Cunningham Architects
Location: Wimberley, Texas, United States
Mechanical/Electrical/Plumbing Engineer: MEP Systems
General Contractor: Burnette Builders, Inc.
Landscape Architect: Hocker Design Group
Project Area: 5,000 sqf
Project Year: 2009
Photographs: Tre Dunham, Gisela Borghi, and Cunningham Architects