Montreal, Canada
naturehumaine
Post By:Kitticoon Poopong
 |
| Photo © Courtesy of naturehumaine |
“The clients wished to enlarge their 800sq-ft bungalow by adding a second floor to the existing structure. However, the poor conditions of the foundations quickly proved this option impossible…”
 |
| Photo © Courtesy of naturehumaine |
 |
| Photo © Courtesy of naturehumaine |
“
In turn, the architects studied the possibility to build an extension into the backyard. Again two major constraints were to be found: the Municipality forbid to construct higher than the existing roof membrane and the presence of roc 4-0 ft into the ground made the construction of a basement very costly.
 |
| Photo © Courtesy of naturehumaine |
From those limitations, an unconventional solution was developed: compressing the spaces on numerous split-levels to yield the desired rooms, with a stunning double height dining room and a generous provision of natural light.
 |
| Photo © Courtesy of naturehumaine |
 |
| Photo © Courtesy of naturehumaine |
The selected building materials are deliberately left raw and untouched to bluntly meet the existing structure of the house. And for all its acceptance of roughness, the home’s interior achieves a simple air of authenticity.
 |
| Photo © Courtesy of naturehumaine |
 |
| Photo © Courtesy of naturehumaine |
Playing in a subversive manner with the numerous constraints, the architects yielded a unique project. Simple and modest, the St-Hubert residence offers nonetheless a rich spatial experience with generous and luminous spaces.”
 |
| Photo © Courtesy of naturehumaine |
 |
| Photo © Courtesy of naturehumaine |
 |
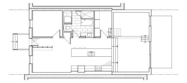
| floor plan--drawing Courtesy of naturehumaine |
 |
| section 01--drawing Courtesy of naturehumaine |
 |
| section 02--drawing Courtesy of naturehumaine |
The people
Architects: naturehumaine
Location: Montreal, Canada
Photographs: Courtesy of naturehumaine